
Madras RFP Bid
Find more information on the Public Project Listings page through Central Oregon Builders Association:
NOTICE TO PROSPECTIVE BIDDERS
NOTICE TO PROSPECTIVE ​bidders
PROJECT
​Madras MountianStar Family Relief Nursery
122 NE 10th Street
Madras​, ​Oregon​ 97741.
The Owner: MountianStar Family Relief Nursery
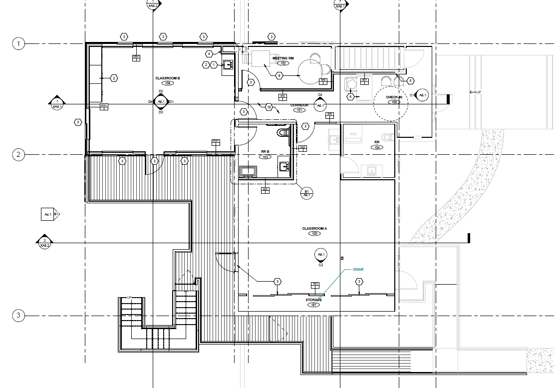
PROJECT DESCRIPTION
Summary Project Description: ​Contract Documents
Base Scope: Renovation of the existing Madras MountainStar Family Relief Nursery. Renovation to include:
Remodel of a kitchen from a previous kitchenette on the lower level. Including the associated plumbing, mechanical and electrical revisions.
A remodel to add an office space to the entry ground level and an exterior deck and stair to the rear of the building from the ground level.
ADA Barrier Removal: resurfacing and restriping of ADA parking spaces, including new ADA parking signage and repaving of portion of the adjacent sidewalk
2. Add Alternate Scope:
A new two story, approximately 900sf addition, of two classroom spaces. With a new composite deck and base bid exterior stair, as well as new flat work at addition with railing at rear walkway.
ADA Barrier Removal: This add alternate scope also includes replacement of the existing ADA ramp and railing with a new concrete ramp and railing.
3. Demolition has been partially completed due to Asbestos abatement, previously conducted by owner's consultant.
Contract Scope: ​Construction​.
Contract Terms: Stipulated Sum.
PROCUREMENT TIMETABLE
A. RFP Documents ​Available​: ​05-05-2025
B. Pre-Bid Site Visit: 05-07-2025
C. Last Request for Information Due: 05-16-2025
D. Last Request for Substitution Due: 05-16-2025
E. Addendum issued 05-23-2025
F. Bid Due Date: 06-04-2025, before 2 PM local time.
G. ​Proposal​ Opening: ​Same day​, ​3 PM​ local time.
H. The Owner reserves the right to change the schedule or terminate the entire procurement process at any time.
PROCUREMENT DOCUMENTS
Availability of Documents: Complete sets of procurement documents may be obtained:
From Owner via Plan Center
COBA Plan Center Public Project Listings